爱体育在线官网-爱体育(中国)

ELEVATOR DOOR SYSTEM电梯门系统

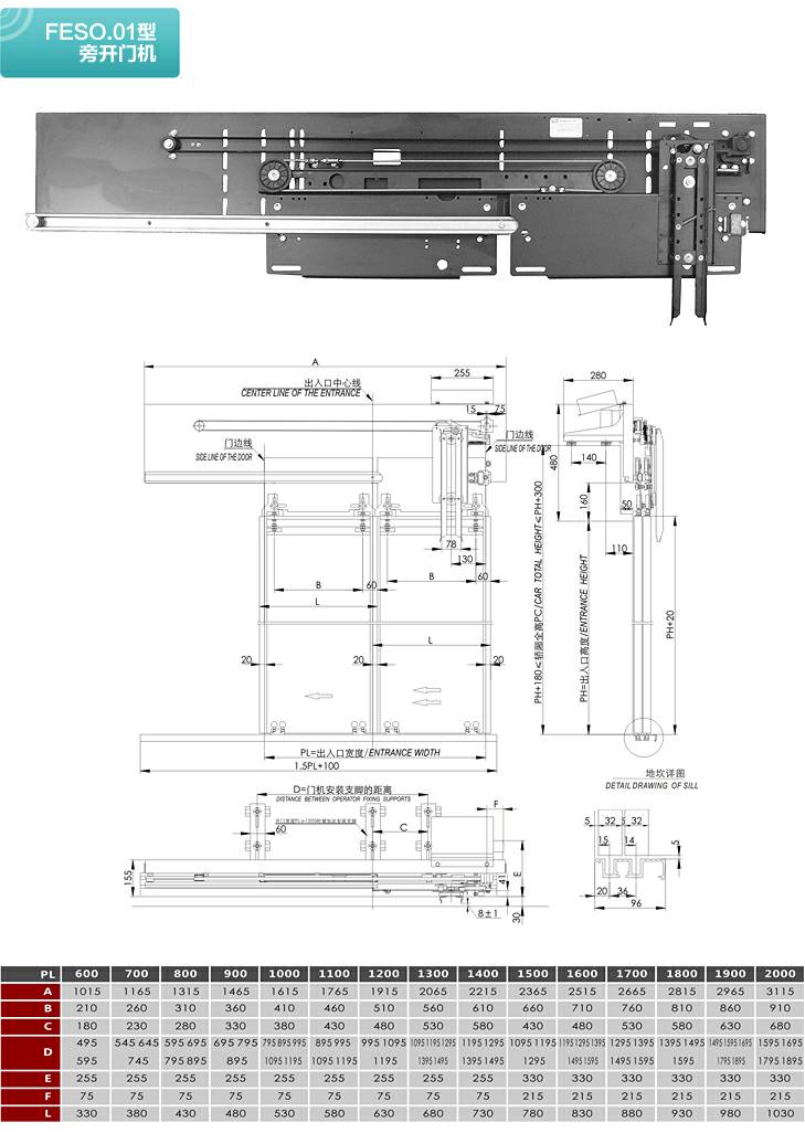
FESO.01型旁开门机